Otrzymaliśmy zlecenie zaprojektowania osiedla domów jednorodzinnych. Celem do osiągnięcia była budowa 8 niedużych lokali mieszkalnych. Taki był wymóg dewelopera po przeanalizowaniu lokalnego rynku.
Na dwóch działkach wg zamysłu Inwestora miały powstać dwa „czworaki” czyli zgrupowane w dwie pary, cztery budynki w zabudowie bliźniaczej, w każdym z nich po dwa lokale mieszkalne. Działki jak na potrzeby sprzedaży mieszkań były za duże do realizacji mniejszej ilości lokali i jeśli nie udałoby się zaprojektować wymaganego zakresu, posesje zostałyby wystawione na sprzedaż. Sytuacja rynkowa oraz duża ilość wolnych działek w okolicy wpływa jednak na małą skuteczność takiej transakcji.
Podjęliśmy się tematu mimo sporej trudności założeń wyjściowych i obawy, że tak gęsta zabudowa może nie spełniać zasad wygodnego zamieszkiwania.
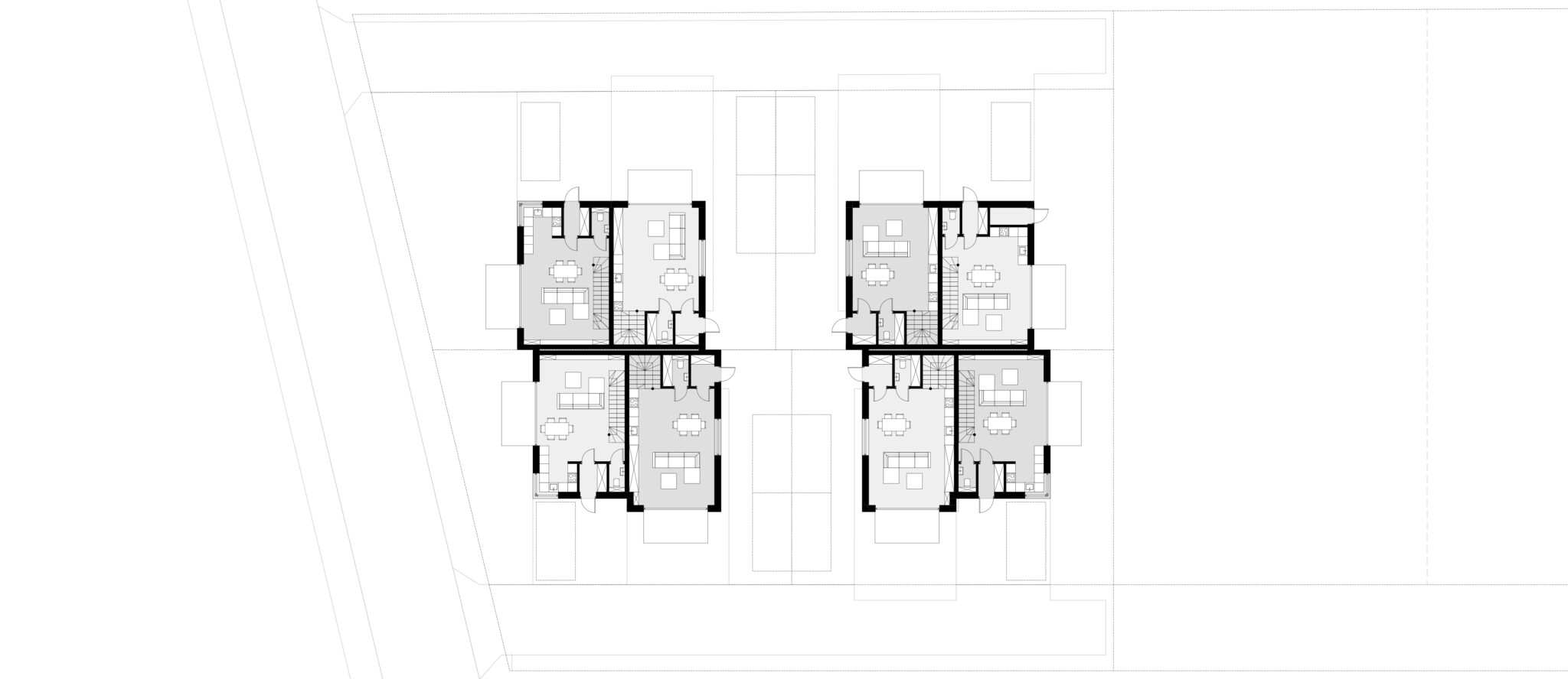
Wytyczne planu miejscowego i aktualny podział ewidencyjny gruntu pozwalał na realizację założonego celu, ale tylko wtedy gdy połowa z ośmiu mieszkań znalazłaby się w całości na piętrze. Uznaliśmy, że brak dostępu do własnego ogrodu będzie bardzo niekorzystnym rozwiązaniem. Lokalizacja znajduje się na przedmieściach i nie wyobrażaliśmy sobie aby tworzyć mieszkania tak jak w budynku wielorodzinnym w mieście.
Zaproponowaliśmy nowy podział ewidencyjny, który wprowadził drugą drogę wewnętrzną po przeciwległej stronie założenia i podzielił długie działki budowlane na pół. Podział wymusił zlokalizowanie budynków w głębi działek. Dzięki temu uzyskaliśmy wymaganą ilość lokali mieszkalnych ale tym razem każde mieszkanie posiadało własny parter, piętro, dach, a przede wszystkim podjazd i ogród.
Poprzez obrót niektórych dachów, lekkie wydłużenia i przesunięcia kubatur uzyskaliśmy dynamiczną strukturę, która dodatkowo uwidoczniła podział pomiędzy lokalami. Założenie stanowi jedną całość, a zarazem każdy lokal jest unikalny. Dzięki temu każdy mieszkaniec może bardziej utożsamić się ze swoim własnym domem.
Zdawaliśmy sobie sprawę, że lokalizacja niewielkich ogrodów na foncie nie jest najlepszym możliwym rozwiązaniem. Usilnie staraliśmy znaleźć dodatkowe miejsce do wypoczynku na świeżym powietrzu i takie znaleźliśmy na dachu. Był to najlepszy pomysł ponieważ okolica była zadrzewiona i wizja posiadania dodatkowego ogrodu z widokiem na korony drzew okazała się bardzo zachęcająca. Tarasy na dachu stały się wartością dodaną jakiej nie ma żadna inna inwestycja tego typu w okolicy co ma potencjalnie wpłynąć na sukces osiedla.


















